대기업의 단독주택 시장 진출

2023.05 방문
안녕하세요! 하프시계입니다.
최근 단독주택의 수요가 늘어가면서 자연스럽게 주택 건축에 대한 관심이 늘었습니다.
베이비부머 세대의 은퇴와 전원주택 삶을 꿈꾸는 경우가 절반 이상 된다고 합니다.
저희 가족도 비슷한 경우인데, 자식들이 다 나와서 살면서 큰 평수의 아파트보다
전원주택에서 정원을 가꾸며 사는 삶을 추구하시면서 자연스럽게 전원주택건축을 많이 찾아보게 되었습니다.
하지만 단독주택이 설계비와 건축비가 만만치 않다는 점!
단독주택을 설계하면 10년은 늙는다는 말이 있을 정도로 아무리 많은 돈을 들여 단독주택을 건축하더라도,
건축 특성상 추후 생길 수 있는 하자, 보수가 필요한 경우가 대부분입니다.
그리고 건축 과정에서 인부들과 싸우게 되는 경우도 많은데요.
이거 진짜 스트레스입니다..
또한 단독주택 건축은 대부분 작은 기업에 맡기는데,
그 기업이 사라질 수도 있기에 설계회사를 선택하는 것도 정말 힘듭니다.
그런데 마침 GS건설에서 본인들의 '자이' 이름을 걸고 단독주택 사업을 시작했습니다.
자이가이스트 (XiGEIST)

목조모듈러주택 - Prefab 방식
GS건설의 자회사
시공능력평가 5위인 종합건설업체 GS건설의 자회사 '자이가이스트' (XiGEIST)가 국내 단독주택시장에 진출했다.
거의 첫 대기업의 단독주택시장 진출로 많은 관심을 받고 있다.
'목조모듈러주택' 전문 자회사로 B2C영업을 시작했다.
지난 2년간 모듈러기술 연구와 평면 개발로 약 50개의 표준 모듈을 준비했고, 일반 건축주는 토지 형태와 내부 평면 구성에 따라서 이 모듈을 조합하는 방식으로 주택을 설계하게 된다. 모듈 설계 후 건축 계약을 통해 주택 건립을 진행한다.
단독주택의 최대 단점인 품질과 사후관리에 집중하여 새로운 패러다임을 선도해 나갈 것이라고 한다.
현재 웹사이트에 Home Configurator기능이 있는데, 본인이 원하는 평형대, 원하는 집 모델링을 만들어낼 수 있다.
각 모듈을 조합하는 방식으로 할 수 있고 지붕 형태도 고를수있다.
3D모델링을 볼 수 있어서 더 직관적이고 이해하기 쉽다.
모델하우스 방문도 도움이 되지만, 모델하우스는 다양한 평형을 볼수는 없기에 웹사이트에서 한 번 만들어보는것도 좋다.


주력모델: 35평형, 54평형
Prefab공법 이용, 모듈러 주택으로 구조체를 공장에서 생산하여
현장 근로자의 숙련도에 의존하는 단독주택과는 다른 균일한 품질을 확보할 수 있다.
조립식 주택이라고 생각할 수 있는데, 국내에는 생소한 개념일 수 있습니다.
하지만 주택을 많이 건축하는 해외에서는 이미 prefab공법을 이용한 주택이 많이 발전되어 있어서
조립식 주택이라고 퀄리티가 절대 떨어지지 않습니다.
한국은 주택보다 아파트가 훨씬 많기에 언제 한국에 들어오나 했는데 이번에 대기업에서 사업을 진행하는 걸 보고 앞으로 한국에서 더 활성화되었으면 좋겠다는 생각이 듭니다. Prefab공법은 다양한 방법이 있는데 공장에서 대부분을 완성해서 부지에 올려 최소한의 작업으로 마무리하는 방법과 조립식 커팅된 자재들을 부지에서 금방 조립하는 방법 등 방법이 다양합니다.
자이가이스트는 대부분을 완성하여 부지에 올리는 방법으로 진행한다고 합니다.
자이가이스트의 장단점
장점
✔️GS건설의 자회사 - 추후 하자, 유지, 보수를 책임
✔️모듈러 주택 방식 - 단독주택과 다르게 균일한 품질 확보가능
✔️빠른 건축기간 - 인허가 기간 제외 2개월 안에 주택 공급
✔️저렴한 가격 - 일반 단독주택 업체 건축비의 90% 수준
단점
✔️경사진 대지에 건축하는 경우 불가능한 경우가 있음
✔️모듈러 주택방식이라서 원하는 설계를 정확하게 구현하기 어려움
아래 웹사이트를 방문하면 다양한 다른 프로토타입을 볼 수 있습니다.
웹사이트 - 링크
자이가이스트
GS건설이 만든 단독주택 브랜드, 자이가이스트 목조단독주택전문,주택단지 개발 및 개별상품 공급, 유럽 선진기술 R&D 및 자이의 설계노하우가 반영된 품격있는 주택. 안전하고 정밀한 집, 고객
www.xigeist.com
가격
일반 단독주택 업체 건축비의 90%
자이가이스트의 평당 가격은 3.3제곱미터당 600~700만 원으로 측정되고 있습니다.
외장재, 지붕재를 선택할 수 있기에 건축비는 선택한 재료에 따라서 달라집니다.
예시) 35평형 2억~2억 5천
저희는 2층짜리 35평형을 보러 갔는데, 당시 가격을 물어봤을 때 2억 ~ 2억 5천 정도 생각하면 된다고 했다.
전원주택을 '설계'해서 건축을 한다면 요즘 시세에 평당 700~800 정도 생각해야 하니 정말 저렴한 가격에 전원주택을 장만할 수 있다. 물론 주택을 건축할 수 있는 본인 소유의 땅이 있어야 한다.
자이가이스트 샘플하우스 방문 후기

샘플하우스, 자이가이스트 당진 공장
주소: 충남 당진시 면천면 면천로 1139
프로토타입: 35평형, 50평형
샘플하우스를 방문하기 위해서는 예약을 해야 합니다.
인기가 많은 건 알았지만 예약이 꽉 차서 겨우 토요일에 방문했습니다.
현재 상담예약을 하면 한정 프로모션도 알려준다고 합니다.


내부 구조재, 단열재 등 자세하게 설명받을 수 있습니다.
외부 마감재는 선택가능하니 마음에 안들면 다른 자재로 바꿀수 있다고 합니다.
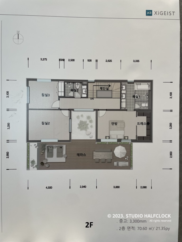
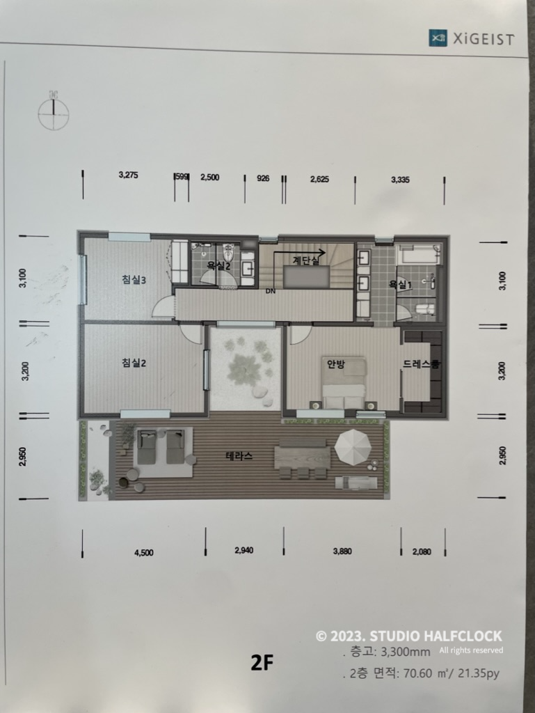
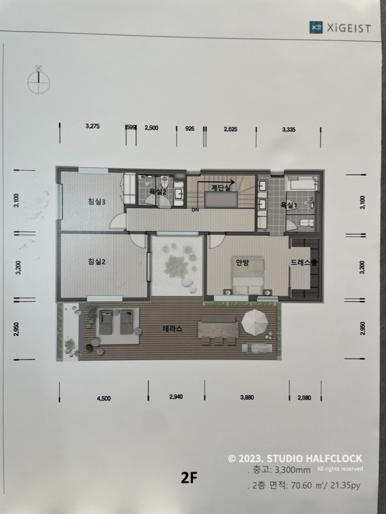
35평형 도면 - 평면도

룸 3개, 화장실 3개로 구성되어 있다.
평면은 얼마든지 바꿀 수 있기에 도면은 참고만 하면 될 것 같아요.
✔️1층 (16.16평) - 현관, 거실, 주방/식당, 욕실, 보일러실, 다용도실
✔️2층 (19.73평) - 방 3개, 욕실 2개, 드레스룸, 테라스
1층은 공용공간(현관, 화장실, 거실, 주방, 식당, 다용도실)으로 구성되어 있고
2층에 방이 3개라서 동선분리는 괜찮았다.
하지만 부모님이 살 공간이라서 1층에 큰 방 하나정도는 필요했다.
1층에 방이 없는 게 아쉬워서 물어봤는데 1층에 방이 있게 바꿀 수 있다고 했다.
35평형 - 1층 (16.16평)


1층 - 현관, 거실, 주방/식당, 욕실, 보일러실, 다용도실
현관에 들어가면 바로 2층으로 가는 계단이 보이고, 왼쪽에는 작고 간단한 화장실이 있다.
집에 들어가서 바로 손을 씻을 수 있게 설계되어 있다.


그리고 오른쪽으로 가면 거실과 부엌이 보인다.
조금 작다고 느낄 수 있지만 부모님 두 분이서 살기에는 충분했다.
35평형 - 2층(19.73평)


2층 - 방 1(방, 화장실, 드레스룸), 방 2, 방 3, 테라스
계단을 올라가서 오른쪽에는 큰 방이 있다.
침실과 욕실, 드레스룸이 있기에 부부가 사용할 수 있는 방이다.


다른 두 방은 많이 작았다.
다 큰 자식들이 가끔 방문해서 머무르는 게스트룸으로 딱 좋았다.
물론 우리 가족한정 (젊은 부부의 경우 아이들 키우기 좋게 설계된 집)


2층의 공용욕실은 손 씻는 공간과 화장실 공간이 분리되어 있어서 좋았다.
주택의 장점을 가장 많이 보여주는 게 테라스 공간이다.
아파트에는 이런 공간이 없어서 더 매력적으로 보이는 것 같다.
52평형


50평대 단독주택으로 룸 4개, 화장실 3개로 구성되어 있다.
중앙에 자연광이 들어오는 중정이 인상 깊었는데, 좋아 보였는데 엄마는 좀 부정적이었다.
공간 효율성이 떨어지고 유리로 되어있어 단열문제가 있을 수 있다는 의견이었는데
내가 보기엔 예쁘고 좋아 보여서 난 긍정적이었다.
52평형 - 평면도


✔️1층 (31.68평) - 현관, 주방, 식당, 거실, 다용도실, 보일러실, 욕실 1, 침실 1, 텐트리
✔️2층 (21.35평) - 방 2개, 욕실 2개, 부부방 (방, 드레스룸, 욕실), 테라스
50평 형대를 보러 간 건 아니라서 꼼꼼하게 보진 않았다.
50평이면 많이 클 것 같지만 생각보다 그렇게 크지는 않았다.
(테라스나 중정으로 빈 공간들이 있어서 그렇게 느낀 것 같다)
52평형 - 1층(31.68평)


현관으로 들어가면 바로 2층으로 갈 수 있는 계단이 있고, 왼쪽에는 길쭉한 주방이 있다.
주방의 오른쪽에는 다용도실과 팬트리가 있다.
주부들의 동선을 생각한 것 같다.


주방을 통해 들어가면 식당이 보이고 거실이 보인다.
거실과 식당에서는 유리를 통해 중정을 볼 수 있다.
52평형 - 2층(21.35평)


2층 - 부부침실 (방, 드레스룸, 화장실)
화장실이 호텔처럼 되어있는 게 인상 깊었다.
변기와 샤워실, 욕실을 구분해 놓은 것도 깨끗해 보였다.
드레스룸은 생각보다 작았다.


2층 - 룸 2, 룸 3
조금 작은 방 하나랑 큰 방하나가 있다.
공용 욕실은 복도에 위치해 있다.
2층 복도에서 바로 중정을 내려다볼 수 있어서 좋았다.
넓은 2층의 테라스는 부부방과 다른 방 한 개를 통해 나갈 수 있다.
글을 마치며..
전원주택을 저렴하고 빠르게 만들기 위해 가족들과 충남 당진까지 가서
열심히 둘러보고 거의 2억에 2개월 만에 건축한다고 신나 있었는데
부지를 보여주면서 상담하는데 우리 부지는 불가능하다는 판정이 났다.
이유: 부지의 경사 (약 6m의 경사) + 남-북으로 길쭉한 부지 (크레인의 행동반경 부족)
부지가 좀 길쭉하고 경사가 거의2층 높이라서
부지의 앞쪽에 건축한다면 가능하지만 뒤쪽으로 건축하는 건 불가능하다고 한다.
하지만 앞에 건축하게 되면 정원이 그늘져서 안되는데..
정말... 너무... 아쉬웠다. (가족들 다 아쉬워함)

Prefab공법이 자재들만 가져가서 순서대로 조립하는 방식이면 가능한데
자이가이스트는 거의 완제품 같은 집을 올리는 식으로 한다고 해서
결국 불가능... 그렇게 포기하게 되었다..
그렇게 결국 우리 가족은 설계해서 전원주택을 건축하기로 결정했다. ^^
▼전원주택 설계 회사 고르기
2023.06.26 - [Architecture and Art] - [전원주택 설계]설계업체 비교 후, 더존하우징으로 선택
[전원주택 설계]설계업체 비교 후, 더존하우징으로 선택
조립식 주택 vs 설계주택 2023.06 기준 전원주택 건축을 위해 땅은 있지만, 설계부터 건축까지 굉장히 부담이 있었습니다. 저희 가족은 계속해서 건축을 미루고 있었는데요, 이제 더 이상은 미룰
halfclock.com
[2023.05.14. 업데이트]
'Architecture and Art' 카테고리의 다른 글
| 영국 건축가 토마스 헤더윅, 우리 시대의 '레오나르도 다빈치' (0) | 2023.06.13 |
|---|---|
| [조립식 주택]LG전자가 만든 소형 주택_스마트코티지 (0) | 2023.05.27 |
| AI로 그림그리기, 미드저니 MidJourney (0) | 2023.05.12 |
| 2023년 프리츠커상 수상, 영국 건축가 데이비드 치퍼필드 (0) | 2023.04.16 |
| 최근 건축에 쓰이는 3가지 친환경 단열재 종류 (0) | 2023.04.15 |
댓글