
New Interior for Casa Batllo Stairs & Atrium
까사 바트요의 계단과 아트리움 새로운 인테리어
스페인 건축가 안토니오 가우디가 건축한 까사 바트요 건축물의 계단과 아트리움 부분을 꾸미는 프로젝트를 진행했다. 겐고 구마 (Kengo Kuma), 일본 건축가가 맡아서 진행했다.
[기본 정보]
- 프로젝트 종류: Installations
- 건축가: Kengo Kuma & Associates
- 면적: 260㎡
- 연도: 2021
- Client: Casa Batllo S.L.U
[프로젝트 내용]
까사 바트요의 모든 방문객이 통과해야 하는 비상계단의 내부와 아트리움을 꾸미는 프로젝트다. 건물의 8개 층을 가로지르는 비상계단으로, 아트리움과 지하의 석탄 벙커에 만들어진 추가적인 전시 공간과 1층을 연결하는 새로운 계단을 장식했다. 164,000m의 알루미늄 체인을 사용하여 유기적인 형태의 망사 커튼을 만들었다. 이 커튼은 스페인 회사인 Kriskadecor의 알루미늄 체인을 사용하여 제작되었고, 까사 바트요에서 가우디가 이용한 빛에 대한 오마주를 컨셉으로 한다. 디자이너 마리오 난니가 개발한 조명은 금속 링크에 반사되어 반짝이는 품질을 향상시킨다.

"이 공간은 마치 낚시 그물처럼 빛을 받아 밝기, 실루엣, 그림자 등 모든 형태로 우리에게 보여준다."
- 겐고 구마
새롭게 접근 가능한 지하로 내려가는 계단은 런던에 본사를 둔 Ancient & Modern에 의해 설계되었다. 새로운 지하실은 2,000㎡의 추가 전시 공간이 들어갔고, 현재 "10D 체험" 공간이 있다.
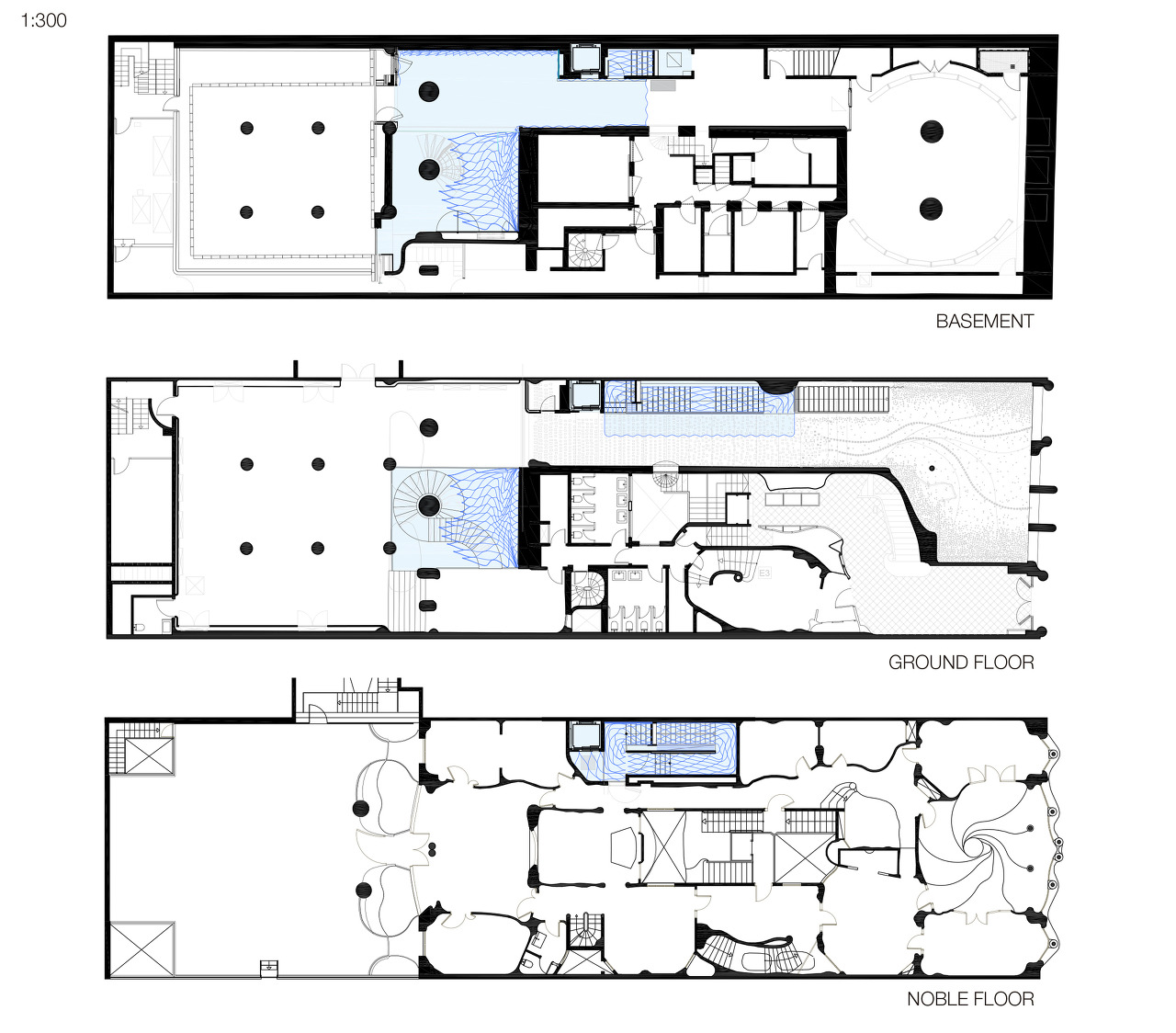
평면도 및 단면도

까사 바트요의 평면도다. Basement, Ground Floor, Noble Floor 평면으로, 겐고 구마가 까사 바트요의 어느 부분을 꾸몄는지 알 수 있다. 아래의 단면도를 보면 더 이해가 쉽다.

겐고 구마가 꾸민 부분이다. 지하부터 옥상까지 이어지는 계단 (건물의 코어 부분)을 디자인했다.
영상
영상을 보면 좀 더 형태에 대한 이해가 쉽고, 내부의 알루미늄 커튼이 빛에 따라 어떻게 반응하는지 잘 볼 수 있다.
[2022.06.04. 업데이트]
'Architecture and Art' 카테고리의 다른 글
| 스페인 바르셀로나 구엘 공원, 방문 후기 (0) | 2022.06.05 |
|---|---|
| 안토니오 가우디의 집 건축, 까사 바트요, 방문 후기 (0) | 2022.06.04 |
| 가우디 건축, 까사밀라, 방문 후기 (0) | 2022.06.03 |
| 스페인 건축여행, 바르셀로나부터 스페인 남부까지 (0) | 2022.06.01 |
| 안토니오 가우디, 스페인의 천재 건축가 (0) | 2022.05.30 |
댓글